Bezahlbarer Baugrund in Schwindkirchen
- Aktueller Stand der Planungen zum Baugebiet Dillis III
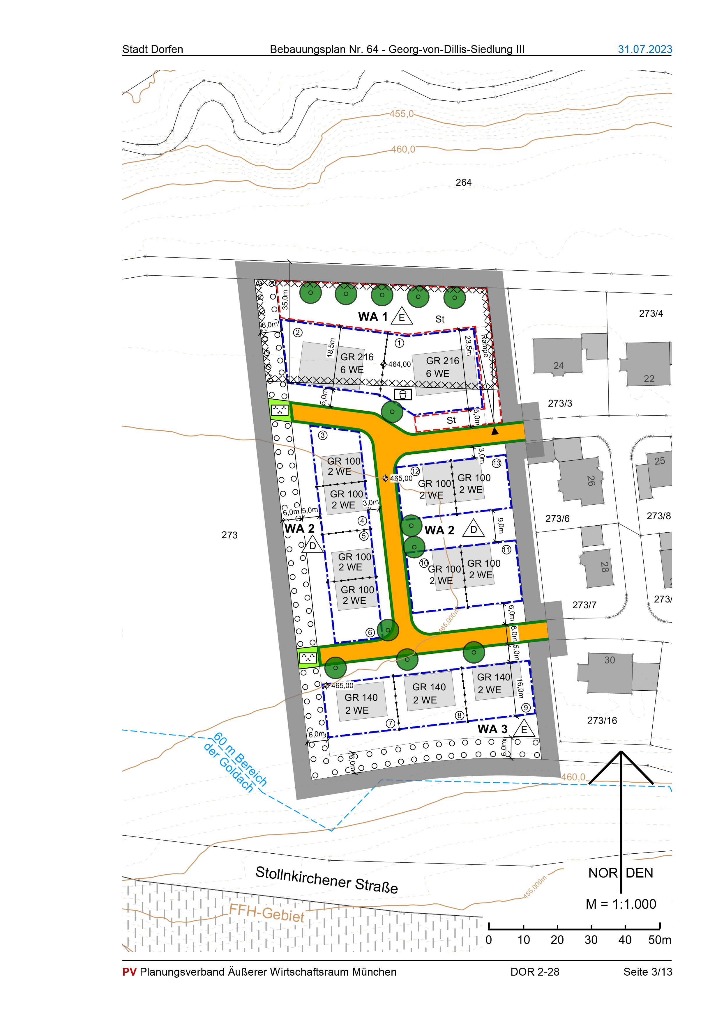
- Dritter Entwurf Bebauungsplan Nr. 64 Georg-von-Dillis-Siedlung III Ortsteil Schwindkirchen
- Amtliche Bekanntmachung Bebauungsplan Nr. 64 „Georg-von-Dillis-Siedlung III“
- Artikel im Dorfener Anzeiger zum Stadtratsbeschluss vom Juli 2024 bzgl. Baugebiete in Schwindkirchen und Wasentegernbach
- Vorschlag in der Bauausschusssitzung vom 26.Jul.2023 mit Einfamilien- und Reihenhäusern plus Geschosswohnungsbau Dillis-III
- Vorschlag in der Bauausschusssitzung vom 26.Jul.2023 mit Einfamilien- und Reihenhäusern plus Geschosswohnungsbau in Wasentegernbach
- Bürgerinfo: Neues geplantes Baugebiet "Dillis-Siedlung West" und „Wasentegernbach Südwest"
- Entwurf der Bauleitplanung für Georg-von-Dillis-Siedlung III, vorgestellt bei der Bürgerversammlung in Schwindkirchen am 21.11.2022
- Bilder des Flächennutzungsplan der Stadt Dorfen für den Ortsteil Schwindkirchen
- PDFs für Flächennutzungspläne im ganzen Gemeindebereich Dorfen
Aktueller Stand der Planungen zum Baugebiet Dillis III
Bebauungsplan Nr. 64 Georg-von-Dillis-Siedlung III , Ortsteil Schwindkirchen, Planungsbeschreibung
Artikel im Merkur vom November 2024 zu diesem Thema
( Link zum Merkur-Artikel )
( Download PDF )
Richtlinien Vergabe Grundstücke Neubau für selbst genutztem Wohneigentum 2023 in der Stadt Dorfen
Artikel im Dorfener Anzeiger zur Bausausschusssitzung im Dorfner Stadtrat vom 26.7.2023
Vorschlag in der Bauausschusssitzung vom 26.Jul.2023 mit Einfamilien- und Reihenhäusern plus Geschosswohnungsbau in Dillis-III
Wie im Artikel im Dorfener Anzeiger (siehe oben) erwähnt, wird dieser Vorschlag aber wohl noch überarbeitet
Vorschlag in der Bauausschusssitzung vom 26.Jul.2023 mit Einfamilien- und Reihenhäusern plus Geschosswohnungsbau in Wasentegernbach
Wie im Artikel im Dorfener Anzeiger (siehe oben) erwähnt, wird dieser Vorschlag aber wohl noch überarbeitet
Neues geplantes Baugebiet "Dillis-Siedlung West" und „Wasentegernbach Südwest"
In der Bürgerinfo der Stadt Dorfen findet sich auf der Seite 8 folgende Info:
Aufstellungsbeschlüsse und Änderungsbeschlüsse gemäß § 13b BaugB für Bebauungspläne
Bekanntmachungen gemäß § 2 Abs. 1 BauGB
Der Stadtrat der Stadt Dorfen hat in folgenden Sitzungen Aufstellungsbeschlüsse für Bebauungspläne gemäß § 13b BauGB gefasst:
a) 6.4.2022: Bebauungsplan Nr. 64 „Georg-von-Dillis-Siedlung III“
...
d) 7.12.2022: Bebauungsplan Nr. 63 „Wasentegernbach Südwest"
Das Baugebiet „Wasentegernbach Südwest" ist auch für Schwindkirchen relevant, weil die Kinder aus Wasentegernbach in Schwindkirchen zur Schule gehen und deshalb auch zum Erhalt der Grundschule Schwindkirchen beitragen.
Auszug aus der Information zu den Baugebieten in der Bürgerinfo der Stadt Dorfen vom Dezember 2022: 
Entwurf der Bauleitplanung für Georg-von-Dillis-Siedlung III, vorgestellt bei der Bürgerversammlung in Schwindkirchen am 21.11.2022

Aufgabe der Arbeitsgruppe “Bauland” ist nun, nach der Bürgerversammlung für das Baugebiet “Dillis 3” einen Zeitplan bis zur Abwägungs-/Satzungsbeschluss bzw. dessen Einhaltung einzufordern.
Auf der Agenda der Stadtratssitzungen am 7.12.2022 war der TOP:
Bebauungsplan Nr. 125 "Schwindkirchen Grüngiebinger Straße" gem. § 13b BauGB;
Aufstellungsbeschluss gem. § 2 Abs. 1 BauGB
Die Grundstückseigentümer haben den Antrag auf Aufstellung des Bebauungsplan Grüngiebingerstr. gestellt. Das wären ca. 5 - 10 Bauplätze, sowie im Anschluss noch ein städtisches Grundstück mit ca. 5 Bauplätzen. Da 40 gleichzeitig baureif werdende Bauplätze den örtlichen Bedarf übersteigen würden, hat die Landlistenfraktion den Antrag auf Aufstellung eines Bebauungsplans nach §13 BauGB Regelverfahren gestellt, um das Verfahren der Beschleunigung zu entziehen und der Westerweiterung der Georg v. Dillis Siedlung Vorfahrt zu geben.
Hier sind zwei Bilder des Flächennutzungsplan der Stadt Dorfen für den Ortsteil Schwindkirchen. Daran kann man grob die freie Fläche für mögliche Bebauung westlich von der jetzigen Dillis-Siedlung erkennen -- jedoch noch keine Details zu einzelnen Parzellen.
![]() |
![]() |
PDFs für Flächennutzungspläne im ganzen Gemeindebereich Dorfen kann man hier downloaden :
https://www.dorfen.de/bauenplusmobilitaetplusumwelt/bauen/flaechennutzungsplan/
https://www.dorfen.de/media/5167/f_lp_detail_04_2014-1.pdf ( Flächennutzungsplan Detailpläne -- ca.22 MB Dateigröße )
Artikel im Dorfener Anzeiger zum Stadtratsbeschluss vom Juli 2024 bzgl. Baugebiete in Schwindkirchen und Wasentegernbach
https://www.merkur.de/lokales/erding/dorfen-ort28598/aussenbezirke-werden-zu-tode-gespart-baugebiete-in-wasentegernbach-und-schwindkirchen-muessen-verkleinert-werden-93220250.html
Die Schwindkirchener und Wasentegernbacher wollen bauen. Die Regierung von Oberbayern sieht aber keinen Bedarf, weil sie dabei den gesamten Bereich von Dorfen betrachtet. Also müssen die Pläne abgespeckt werden. © Jan Woitas/dpa
Weil die Baugebiete in Wasentegernbach und Schwindkirchen für die Regierung von Oberbayern zu groß sind, muss sie der Dorfener Stadtrat nun verkleinern. Die Räte haben dafür kein Verständnis.
Dorfen – Die Schwindkirchener wollen bauen, davon zeigt sich die Regierung von Oberbayern allerdings nicht begeistert. Auch das neue Wohngebiet „Wasentegernbach Südwest“ passt der übergeordneten Behörde nicht ins Konzept. „Wir müssen nochmals abspecken“, erklärte Bauamtsleiter Franz Wandinger in der Sitzung des Bau- und Verkehrsausschusses.
Um die Bebauungspläne durchzubringen, brauche es dafür ein klares Votum seitens der Stadträte, sagte er. Das gab es am Ende auch. Viele Bürger waren am Mittwochabend in den Sitzungssaal des Rathauses gekommen. „Eine wichtige Entscheidung für die Außenbezirke“, sagte Bürgermeister Heinz Grundner eingangs.
Die Regierung von Oberbayern hatte für die neue Georg-von-Dillis-Siedlung eine gemischte Bebauung gefordert. Deshalb habe man jetzt „Mehrfamilienhäuser mit sechs Wohneinheiten bespielt“, erklärte Wandinger. Dennoch sei der Behörde das Baugebiet zu umfangreich, wusste er. Sie sehe nämlich keinen Bedarf – den müsse die Stadt Dorfen erst nachweisen. „Beim Flächenmanagement wird Schwindkirchen nicht separat betrachtet, sondern der gesamte Bereich von Dorfen – und hier gibt es mehrere Baulücken.“
Von einer Anbindung an die Kreisstraße östlich der Siedlung rät der Bauamtsleiter ab: „Da liegt der Verdacht nahe, wir planen nach und nach eine Erweiterung der Georg-von-Dillis-Siedlung.“ Auch wenn die Stadt eine andere Auffassung als die Regierung habe, müsse man das vermeiden, fügte Grundner an.
„Die verkehrliche Erschließung der Siedlung ist aber sehr wichtig“, hielt Günter Drobilitsch (Landliste Gemeinwohl) dagegen. Andreas Hartl (GAL) verwies auf die Kosten einer Anbindung an die Stollnkirchner Straße, die vermutlich bei 160 000 Euro liegen würden. „Da hat man uns ein sehr enges Korsett aufgelegt“, monierte Martin Heilmeier (LDW) zwar. Dennoch sprach er sich gegen eine Straße aus: „Finger weg, damit wir uns kein Ei legen.“
„Die Außenbezirke werden zu Tode gespart“, ärgerte sich Drobilitsch. Grundner stimmte zu. Ob in Schwindkirchen oder Wasentegernbach, „die junge Generation wird gezwungen, sich woanders anzusiedeln“. Eine Ortsentwicklung werde unmöglich gemacht, so der Stadtchef. „Dafür fehlt mir das Verständnis.“
Denn auch für das Wohngebiet in Wasentegernbach sei noch viel Überzeugungskraft nötig, berichtete Wandinger. Hier gab es ebenfalls eine deutliche Verdichtung, der Umgriff wurde mehr als halbiert. „Dennoch stimmt die Behörde dem Bebauungsplan so nicht zu“, sagte er. Die Lebenswirklichkeit im Dorf sei ganz anders, als man in München denke.
„Schauen wir, dass wir in den nächsten Schritt reinkommen“, meinte Grundner. Diesem Antrag stimmten sechs Stadträte zu. Zwei waren dagegen, weil sie sich weit mehr für die neuen Siedlungen wünschten.
Amtliche Bekanntmachung Bebauungsplan Nr. 64 „Georg-von-Dillis-Siedlung III“
https://www.dorfen.de/media/8651/amtliche-bekanntmachung-bpl-nr-64-g-v-d-siii.pdf
// Text aus obigem PDF amtliche-bekanntmachung-bpl-nr-64-g-v-d-siii.pdf:
Amtliche Bekanntmachung Bebauungsplan Nr. 64 „Georg-von-Dillis-Siedlung III“
Erneute Veröffentlichung im Internet gem. § 13a Abs. 2 Nr. 1 BauGB i.V.m. § 13 Abs. 2 Nr. 2
BauGB i.V.m. §§ 4a Abs. 3, 3 Abs. 2 BauGB
Der Stadtrat der Stadt Dorfen hat mit Beschluss 07.12.2022 beschlossen, den Bebauungsplan Nr.
64 „Georg-von-Dillis-Siedlung III“ gem. § 13b BauGB aufzustellen. Aufgrund des zwischenzeitlich
geänderten Planungsrechts wird auf der Grundlage des § 215a BauGB (Reparaturklausel) das
Bebauungsplan-Verfahren im beschleunigten Verfahren nach § 13a BauGB weitergeführt.
Der Bau- und Verkehrsausschuss hat mit Beschluss vom 13.11.2024 beschlossen, den Entwurf
des Bebauungsplanes Nr. 64 „Georg-von-Dillis-Siedlung III“ in der Fassung vom 08.11.2024
gemäß § 4a Abs. 3 BauGB i.V.m. § 3 Abs. 2 BauGB mit einer verkürzten Frist erneut im Internet zu
veröffentlichen.
Der Umgriff kann aus dem Lageplan entnommen werden. Die Planung sieht im Wesentlichen
die Ausweisung eines allgemeinen Wohngebietes vor.
Der Entwurf des Bebauungsplanes Nr. 64 „Georg-von-Dillis-Siedlung III“ in der Fassung vom
08.11.2024, die Vorprüfung des Einzelfalls sowie das das immissionsschutztechnische Gutachten
werden gem. §§ 4a Abs. 3, 3 Abs. 2 BauGB erneut in der Zeit 20.11.2024 bis einschließlich
05.12.2024 im Internet veröffentlicht. Die Unterlagen sind für diese Zeit auf der Homepage der
Stadt Dorfen www.dorfen.de Rubrik Bauleitplanung unter folgendem Link einsehbar:
(https://www.dorfen.de/bauenplusmobilitaetplusumwelt/bauen/bauleitplanungen/)
Zusätzlich werden die Unterlagen in der Stadtverwaltung Dorfen, Rathausplatz 2, Bauamt, 1. Stock
Zimmer 1.08 während der üblichen Dienstzeiten zur Einsicht zur Verfügung gestellt. Termine zur
Einsichtnahme können unter der Telefonnummer 08081/411-131 vereinbart werden.
Zur vorliegenden Planung können während der Dauer der Veröffentlichungsfrist Stellungnahmen
abgegeben werden. Es wird darauf hingewiesen, dass Stellungnahmen elektronisch übermittelt
werden sollen, bei Bedarf können diese aber auch auf anderen Weg abgegeben werden.
Nicht fristgerechte Stellungnahmen können bei der Beschlussfassung über den Bebauungsplan
Nr. 64 „Georg-von-Dillis-Siedlung III“ unberücksichtigt bleiben.
Gemäß § 13a Abs. 2 Nr. 1 BauGB i.V.m. § 13 Abs. 3 Satz 1 BauGB wird darauf hingewiesen, dass
von der Umweltprüfung nach § 2 Abs. 4 BauGB, von dem Umweltbericht nach § 2a BauGB und
von der Angabe nach § 3 Abs. 2 Satz 4 BauGB, welche Arten umweltbezogener Informationen
verfügbar sind, abgesehen wird. Grund hierfür ist das Ergebnis des Vorprüfungsberichtes des
Einzelfalls, wonach keine erheblichen Umweltauswirkungen zu erwarten sind. Die hierfür
wesentlichen Gründe sind:
- Anschluss an bereits bebaute Grundstücke mit Bestand an Erschließungsstraßen
- Moderate Inanspruchnahme von Flächen im Außenbereich- Unterstützung der Ziele zur Schaffung von Wohnraum
- Nachhaltige Entwicklung, Arrondierung des Ortsrandes
- Einbeziehung umweltbezogener und gesundheitsbezogener Erwägungen
- Flächensparende und kompakte Bauweise, Reduzierung Flächenverbrauch, überwiegende
West-Ost-Ausrichtung der Gebäude und Festsetzung günstiger Dachformen
- Keine umweltbezogenen, einschließlich gesundheitsbezogener Probleme:
Berücksichtigung der Immissionsthematik, keine bekannten Altlastenverdachtsflächen,
keine Gefährdung durch Starkregenereignisse
- Keine Auswirkung auf geschützte Arten
- Keine Nutzung von naturschutzrelevanten Flächen, insbesondere Schutz- und Vorbehaltsgebiete
- Keine Bau- und Bodendenkmäler
Datenschutz:
Die Verarbeitung personenbezogener Daten erfolgt auf der Grundlage der Art. 6 Abs. 1
Buchstabe e (DSGVO) i. V. mit § 3 BauGB und dem BayDSG. Sofern Sie Ihre Stellungnahme ohne Absenderangaben abgeben, erhalten Sie keine Mitteilung über das Ergebnis der Prüfung. Weitere Informationen entnehmen Sie bitte dem Formblatt Datenschutzrechtliche Informationspflichten im Bauleitplanverfahren“, das ebenfalls öffentlich ausliegt.
PDF der amtlichen Bekanntmachung vom Nov 2024 und Luftbild
Download amtliche-bekanntmachung-bpl-nr-64-g-v-d-siii
Download luftbild-bpl-nr-64-georg-v-dillis-iii
Dritter Entwurf Bebauungsplan Nr. 64 Georg-von-Dillis-Siedlung III Ortsteil Schwindkirchen
https://www.dorfen.de/media/8660/dor282_20241118_georg-dillis-iii_sz.pdf





